Blasius
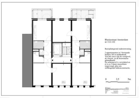
Blasiusstraat 92-122 Amsterdam
Deze negentiende eeuwse panden stonden op de sloop-nominatie. Er was heel veel achterstallig onderhoud en de fundering was onbetrouwbaar. Scala heeft in opdracht van WBV Eigen Haard een ingrijpende renovatie uitgewerkt, waarbij de panden behouden zijn en de gehele straatgevel is gerestaureerd.
Het project bestaat uit 2 delen.
In het rechterdeel, nrs 92-106, zijn 36 koop-appartementen gerealiseerd, kleine etages voor starters. In het linkerdeel, nrs 112 – 122, zijn 18 appartementen voor ouderen gerealiseerd, in de sociale huur sector.
In het gehele project heeft een ingrijpende cascorenovatie plaats gevonden, met funderingsherstel, een nieuw dak, nieuwe kozijnen, nieuwe, geïsoleerde binnenwanden en nieuwe installaties. In het ouderendeel zijn liften toegevoegd en een geheel nieuwe achterbouw met ruime balkons.
Het project is gerealiseerd in het kader van Beter Verbeteren.
Blasius (1627-1682) was een geneesheer te Amsterdam; het voorblad van een van zijn publicaties is afgebeeld op de ruit bij nr 122.
De Blasiusstraat dateert uit ca 1875 en is aangelegd op basis van het plan Kalff. Er woonden veel joden en de leegstand al vroeg in de oorlog zorgde voor sloop tbv hout. Daardoor zijn er in deze straat een aantal van de schaarse na-oorlogse wederopbouwpanden te vinden, die met compensatiegelden zijn gerealiseerd. Nr 92 is hiervan een voorbeeld. In de straat zijn ook grotere recente stadsvernieuwsprojecten te vinden. Door de renovatie van deze panden is van de oorspronkelijke bebouwing een substantieel deel bewaard gebleven

















