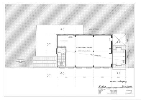
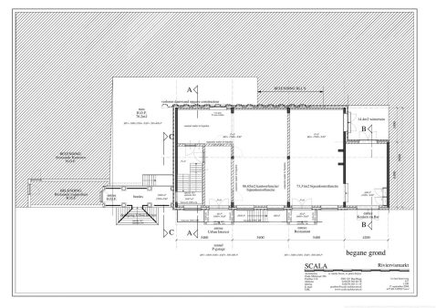
Restaurant en kantoor
Den Haag
Tussen de Laan en Riviervischmarkt is een groot binnenterrein. In opdracht van de gemeente Den Haag en enkele eigenaren is een masterplan gemaakt voor de herontwikkeling van het plan waarin de Nutstuin van het Fonds 1818 een prominente plaats heeft. Het plan is in de la verdwenen toen het bestuur zich minder voor de aanpak ging interesseren.





