Woningen reconstructie Middelweg
Nieuw-Lekkerland
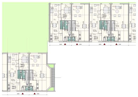
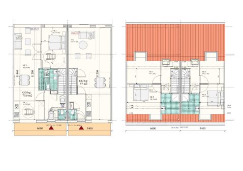
Aan de Middelweg –ontstaan als gehucht naast de dorpskern van Nieuw Lekkerland– worden een drietal huizenrijen vervangen door Woningbouwvereniging Nieuw Lekkerland.
Na een selectieronde werd het doeltreffende en relatief eenvoudige plan van SCALA architecten gekozen. Behoud van de dorpse schaal en sfeer, realisatie van moderne 0-treden woningen niet door een grof appartementengebouw maar door brede eengezinswoningen. De architectenselectie werd gewonnen door een heel haalbaar plan neer te leggen.
Het sluit naadloos aan op het tuindorp karakter van de huidige woningen en –omdat er geen gestapelde woningen zijn voorgesteld, kunnen ‘0-treden’ woningen zonder al te hoge kosten worden gemaakt. Buurt en zittende bewoners waren blij met het ontwerp van SCALA.
Het plan is ingediend in juni 2014. De bouw startte in oktober 2014, de eerste woningen werden in mei 2015 opgeleverd.
Legenda
- ontwerp: SCALA Peter Drijver, Daniël Martina, Michiel Parqui
- opdrachtgever: Woningbouwvereniging Nieuw Lekkerland
- uitvoering: Adriaan van Erk, Bergambacht
























