Woningen ’t Jeurlink
Deventer
De vijfhoek in Deventer bestaat uit buurtjes die als onregelmatige veelhoeken zijn ingepast in bestaand weide landschap met indrukwekkende bomenlanen en windsingels. Een van de buurtjes werd door Scala en Sacon ontworpen.
De vijf zijden van de wijk zijn omgeven door water: aan een zijde zijn de woningen bereikbaar middels bruggetjes, aan drie zijden loopt een voetpad tussen de wetering en de woningrij en aan de vijfde zijde liggen de woningen direct aan het water.
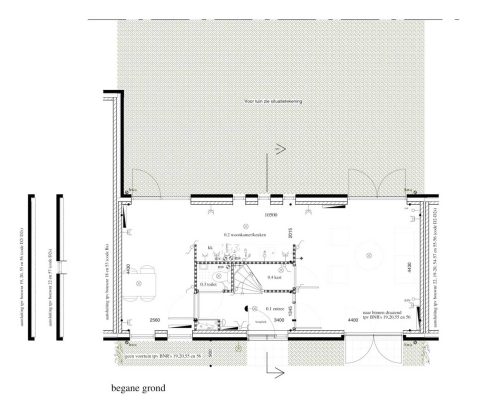
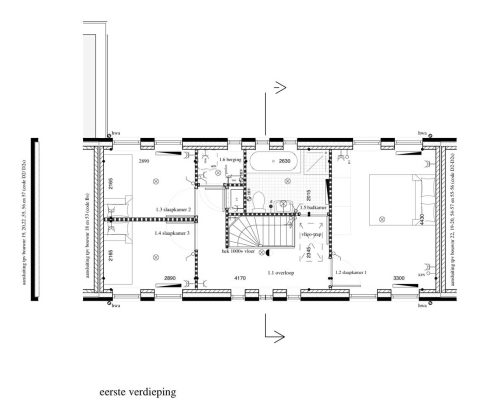
De door Scala ontworpen woningen bestaan uit een rij twee onder een kapwoningen middenin de buurt en een dubbele rij woningen die aan twee zijden de harde rand van het buurtje vormt. Deze dubbele rij ondiepe woningen komt tegemoet aan de wens ook aan de binnenzijde van het buurtje zoveel mogelijk voorkanten van woningen te situeren.
De rijwoningen werden in een goedkoper marktsegment gerealiseerd, geschikt voor latere ophoging. Met Sacon werden gezamenlijk karakteristieke details vastgelegd: kozijnplaatsing, dakranden, de gebroken witte kleur voor het houtwerk en de genuanceerde baksteen.
De bewoners hebben in het buurtje eigen parkeerplaatsen, van de straat gescheiden door een pergola. Door ondiepe, brede woningen in te passen wordt aan deze straten toch tweezijdig gewoond en is het parkeren niet overheersend aanwezig.
Een aantal brede woningen is samengevoegd tot een ‘hofje’. Na uitvoering is dit aangekocht door een stichting tbv zorgwoningen. De woningen werden hierna elk gesplitst in twee appartementen en een woning voor de verzorger.
Het complex werd opgeleverd in de winter van 2002.
Legenda
- ontwerp: SCALA Mieke Bosse, Peter Drijver, Ruud hoppenbrouwers, Sabine Meier, Petra Zwart, Bas Streppel, 2000-2001
- ontwikkeling en uitvoering: Bouwbedrijf Schutte, Zwolle
























