Courtine Den Haan
Zwaanswal, Verlengde Torenstraat, Gorinchem
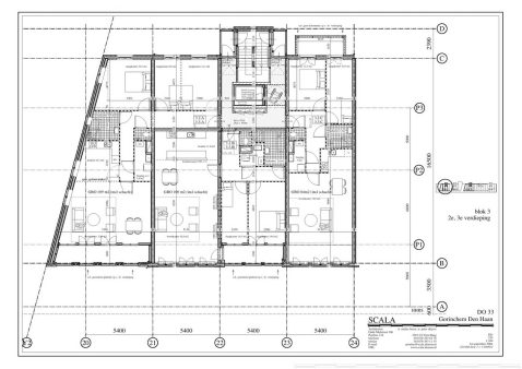
Een voormalige bedrijvenlocatie binnen de vesting Gorinchem is herontwikkeld ten behoeve van woningbouw. Met het bureau De Zwarte Hond is een opzet uitgewerkt waarbij de courtine tussen de bolwerken is vormgegeven als een langs de wal gelegen promenade. De hier gelegen appartementengebouwen zijn afwisselend vormgegeven en respecteren elk op eigen manier de eigenheid van de Hollandse stad.
Vanaf het wandeldek dat langs de wal loopt, leiden twee nieuwe dwarsstraten omlaag naar het stadshart.
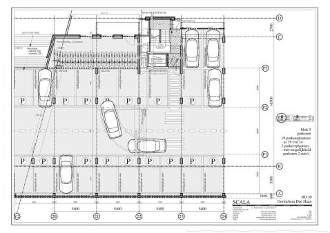
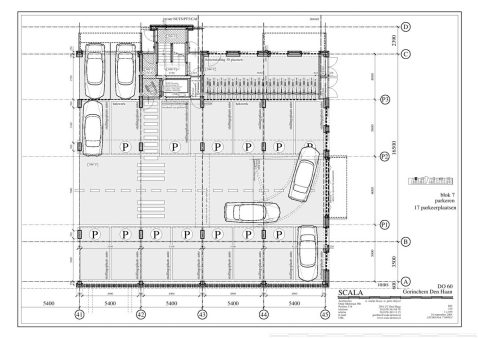
Langs deze dwarsstraten zijn eengezinswoningen gebouwd. Omdat in het plan ook de parkeervoorzieningen van andere projecten gerealiseerd moesten worden is een langgerekte en efficiënte parkeervoorziening onder promenade en appartementen opgenomen. Daarin zijn ook de bergingen en fietsenstallingen gesitueerd. Uitvoering is gestart in 2005, de oplevering was in 2010.
Legenda
- ontwerp: SCALA Mieke Bosse, Peter Drijver, Jean Paul van Alten, Jens Lienau, Petra Zwart 2003
- opdrachtgever: Ballast Nedam Ontwikkeling Nieuwegein



















































































