Nieuwbouw Elandstraat
Amsterdam
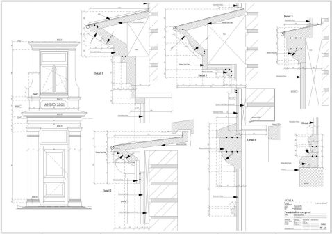
In dit deel van de Jordaan heeft de stadsvernieuwing de samenhang en rust in de straten verstoord. Vandaar dat SCALA voor een onopvallende toevoeging zorgde, die bij nadere beschouwing detail en plezier toevoegt zonder al te nadrukkelijk te wilen zijn.
Twee locaties werden bebouwd met portiek-etagewoningen. De woningen zijn zo uitgelegd dat aan straat of binnenterrein gewoond kan worden.
Legenda
- ontwerp: SCALA Mieke Bosse, Peter Drijver, Bas Streppel, Petra Zwart
- opdrachtgever: Woningbouwvereniging Eigen Haard, Amsterdam
- uitvoering: Merk-Minnesma, Zaandam












