Woningen Nieuw Terbregge
Rotterdam
Nieuw Terbregge is een nieuwbouwwijk tussen de Rotte en de autoweg Rotterdam-Gouda. Hier scheidt een machtig, begroeid dijklichaam de wijk van het verkeerslawaai rond het Terbregseplein. De wijk bestaat uit laagbouwwoningen in verschillende categorieën. De stedenbouwkundige hoofdopzet van Hans Kuiper voorziet in een langgerekte singel die tezamen met de aanwezige waterpartijen als helofytenfilter een rol vervult in de waterhuishouding van het gebied.
Het project is een Thermie project van de Europese Gemeenschap, dwz dat bijzondere maatregelen op het gebied van ontwerp, uitvoering en beheer een bijzondere energie– en milieuprestatie verzekeren.
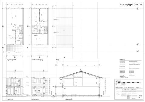
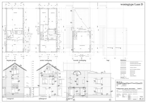
Het masterplan voorzag voor de wijk houten woningen; in het plandeel van Scala is dit op een bijzondere manier uitgewerkt met traditionele verandaas. De 124 woningen van Scala zijn gebouwd langs de singel en langs achterliggende laantjes. Deze laantjes zijn autovrije, openbare groenstroken.
De woningen die hieraan liggen hebben behalve een voordeur een uitloop vanuit de woonkamer dmv een verhoogde veranda. De autotoegankelijkheid is gerealiseerd aan hoven. Via afsluitbare poorten is voor elke woning de eigen parkeerplaats in de achtertuin bereikbaar. Door de bergingen zorgvuldig niet op een rij te zetten en door verschillende dakvormen toe te passen is een kleinschalig informeel binnenerf ontstaan waar een Gammaschutting niet detoneert. De woningen aan de laantjes zijn bekleed met verticale sidings in een palet van Zweeds-rood, Zuidengels-donkerbruin, en Amerikaans-beige. De kopwoningen zijn gemetseld in een rode handvormsteen.
De woningen aan de laantjes worden gestookt door een tweetal imposant vormgegeven collectieve centrales waar kleinschalige warmte-krachtkoppeling is gerealiseerd. De singelwoningen hebben individuele zonneboilersystemen. De dakhellingen zijn gedeeltelijk bepaald door de aanwezigheid van de zonnecollectoren. Een 48-tal woningen aan de laantjes zijn sociale huurwoningen.
Legenda
- ontwerp: SCALA Peter Drijver, Mieke Bosse, Domien Kamsma, Edward Jenner, 1998
- opdrachtgever: Proper Stok, Rotterdam en Patrimoniums WoningStichting Rotterdam
- constructeur: Datema, Woudenberg
- uitvoering: Volker Rotterdam























